PICCOLA LOGO

CUSTOMIZATION STUDIO

SELECT TRIM

FOUNDATION

Start your tiny home journey with a high-quality exterior and structural build. Perfect for DIYers and budget-conscious homeowners who want a solid head start.

CANVAS

A fully built-out structure with essential systems - ideal if you want to personalize interiors while skipping the heavy construction.

NEST

Move-in-ready with kitchen, bath, storage, and certification - perfect for full-time living or flexible ADU use.

SIGNATURE

Luxury upgrades, high-end finishes, smart tech, and multi-functional appliances. This is top-tier tiny home living without compromise.

PLEASE NOTE:

Make sure to complete and submit the form before closing or refreshing the page as your progress will be lost if not submitted.

SELECT MODEL

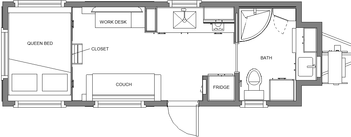
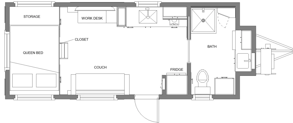
MINUET

/MIN YU ET/ A SLOW GRACEFUL DANCE

13.4' High 24' Long

MINUET FRONT
  • Designed for the Single Professional – Ideal for those who value simplicity and convenience.

  • Bright & Airy Interior – Large windows provide abundant natural light and scenic views.

  • Compact Yet Functional – Thoughtfully designed for efficiency without sacrificing comfort.

  • Movable & Flexible – Easily relocatable for those with a dynamic lifestyle.

  • Inspiring Space – Perfect for creatives looking for a peaceful and stylish home.

*shown with signature trim

MINUET INSIDE
MINUET LR
MINUET BED
MINUET KITCHEN
MINUET BATH
MINUET SHOWER

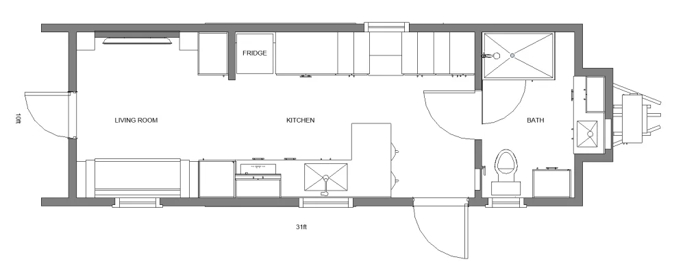
ADAGIO

/AH DA GEE OH/ A PIECE OF MUSIC PLAYED SLOWLY

13' High 30' Long

ADAGIO
  • Spacious & Accessible Design – Single-story layout with wide doorways for ease of movement.

  • Separate Bedroom – Enjoy privacy and comfort with a dedicated sleeping space.

  • Abundant Natural Light – Skylight and numerous windows create a bright and inviting atmosphere.

  • Easy Accessibility – Thoughtfully designed for all stages of life, making it a long-term living option.

  • Versatile Use – Perfect as a seasonal home near family or a permanent residence.

  • Simplified Living – Experience the joy of a minimalist yet comfortable lifestyle.

*shown with signature trim

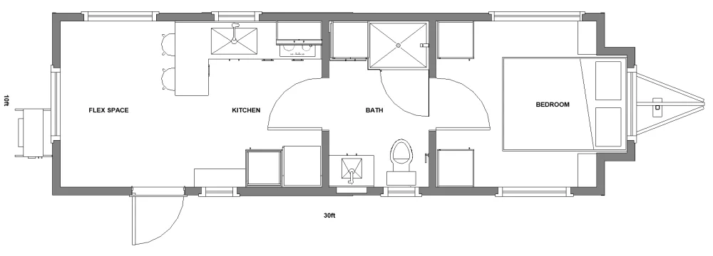
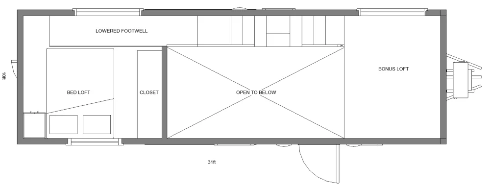
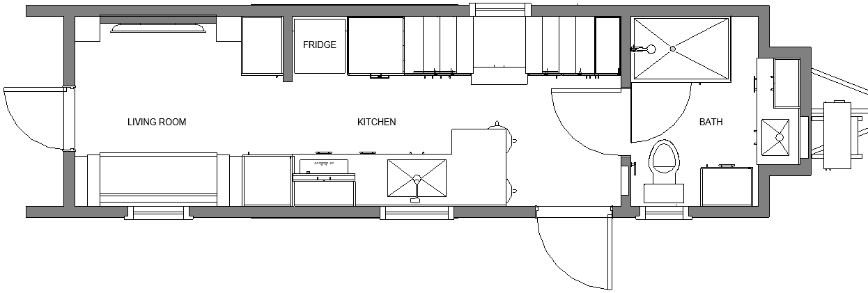
CADENCE

/KAY DENS/ THE BEAT OF RYTHMIC MOTION OR ACTIVITY

13.5' High 31' Long

CADENCE FRONT
  • Designed for Couples – Spacious layout perfect for two.

  • Dual Loft Configuration – Luxurious queen-bed sleeping loft plus a bonus loft for extra storage.

  • Spacious & Versatile – Open-concept feel that enhances livability and comfort.

  • Movable & Flexible – Easily relocatable for those embracing a dynamic lifestyle.

  • Luxury Meets Simplicity – High-end finishes and smart design make downsizing an upgrade.

*shown with signature trim

CADENCE 4
CADENCE 5
CADENCE 5
CADENCE 8
CADENCE 11
CADENCE 15
CADENCE 16
CADENCE 21
CADENCE 22
SELECT WIDTH
MINUET 8.5
MINUET 10
ADAGIO 8.5
ADAGIO 10
CADENCE 1F 8.5
CADENCE L 8.5
CADENCE 1F 10
CADENCE L 10
SELECT SKYLIGHT UPGRADE
SELECT SWITCH UPGRADE
SELECT CEILING UPGRADE
SELECT COUNTERTOP UPGRADE
SELECT WOOD SIDING UPGRADE/SUBSTITUTE
SELECT METAL SIDING SUBSTITUTE
SELECT METAL COLOR
SELECT WINDOW COLOR
SELECT HARDWARE COLOR
SELECT COUNTERTOP COLOR
SELECT MIRROR UPGRADE
SELECT UPGRADE
SELECT UPGRADE
SELECT UPGRADE
SELECT UPGRADE
SELECT UPGRADE
SELECT UPGRADE
SELECT UPGRADE
SELECT UPGRADE

Your Build Cost Estimate

(not including tax)

Model & Trim

________________________________________________________

Customization & Options

________________________________________________________

Site Work

________________________________________________________

Total Cost Estimate

________________________________________________________

FINANCING

________________________________________________________

$
Minimum $8000 down payment for standard models with no customizations; or 15% down payment (minimum $8000) for models with customizations

*assuming 7.25% sales tax and 20 year, 8.5% Fixed APR loan